Wansfell Avenue, Carlisle
Property Summary
Full Details
Driections
From Carlisle City Centre proceed West along Castle Way. Turn left at the traffic lights onto Shaddongate. Continue straight ahead at the traffic lights onto Dalston Road. Turn right onto Woodend Drive and right again onto Wansfell Avenue. The property is situated on the left hand side and can be identified by our "For Sale"
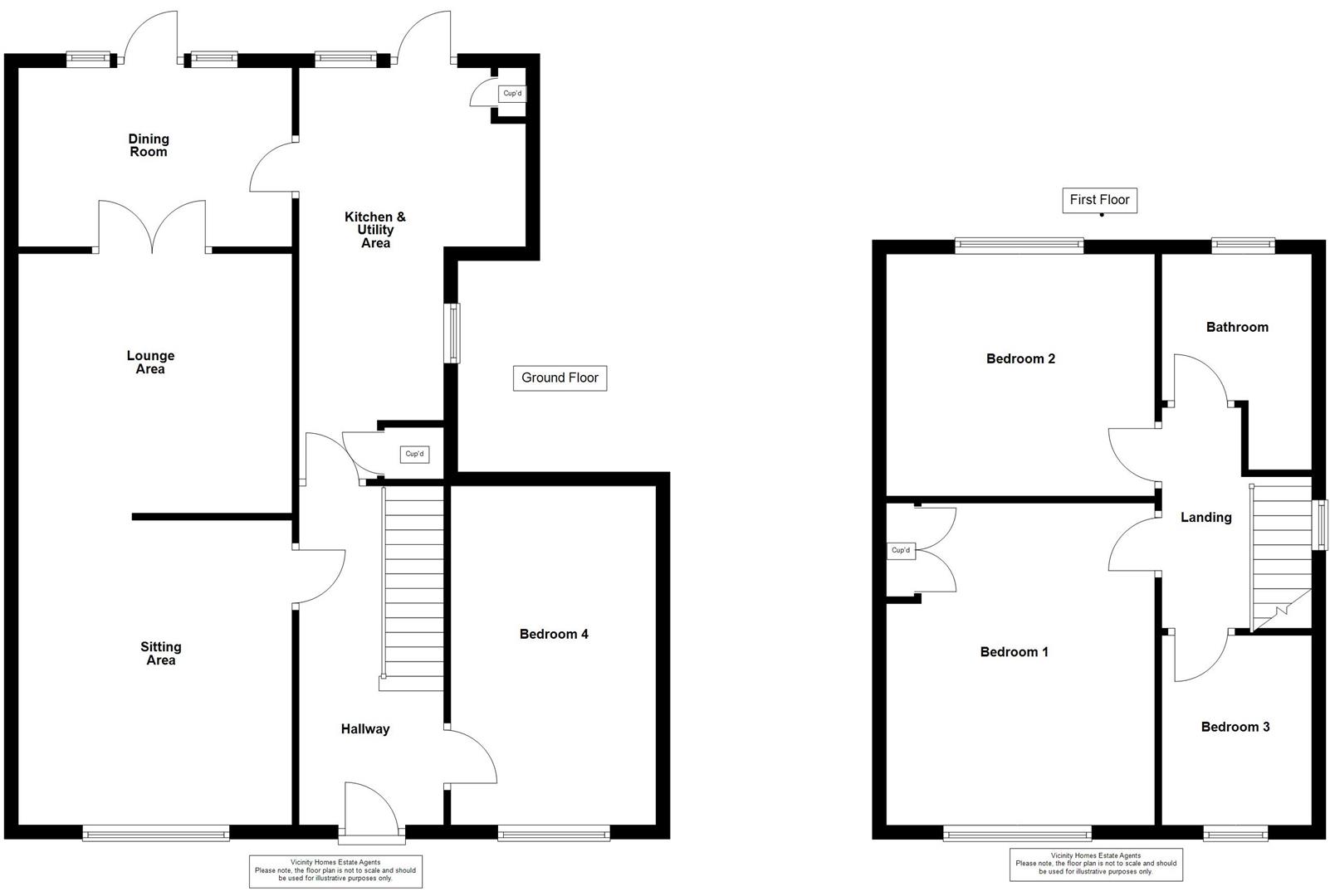
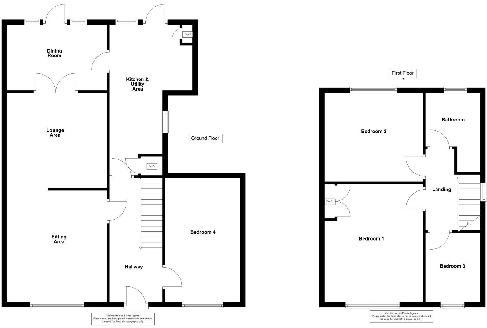
Entrance Hallway
Approached by a door to front, incorporating a radiator, vinyl flooring and stairs to the first floor.
Lounge 3.484m max x 7.442m
This room is currently split by a half wall to make a lounge area and sitting area.
Sitting Area 3.739m x 3.484m max
Incorporating a double glazed window to front.
Lounge Area 3.166m x 3.585m
Incorporating french doors to the dining room and a radiator.
Dining Room 2.353m x 3.366m
Incorporating a door to rear, laminate floor and a radiator.
Kitchen 2.266m min x 3.307m max x 6.637m max
Incorporating a range of fitted wall and base units with complementary work surface over, integrated oven and integrated hob with cooker hood over. Tiled splash areas, 1.5 sink unit with mixer tap, plumbing for a dishwasher and space for a fridge/freezer. Plumbing for a washing machine, space for a tumble drier, double glazed window to side and double glazed window to rear. Door to rear, radiator, laminate floor, built in storage cupboard and under stairs cupboard/pantry with double glazed window to side.
Bedroom Four 4.308m x 2.483m
A ground floor double bedroom incorporating a double glazed window to front, radiator and inset ceiling lights.
First Floor Landing
Incorporating a double glazed obscured window to side and loft access.
Bedroom One 3.934m x 3.270m
A double bedroom incorporating a double glazed window to front, radiator and built in storage cupboard.
Bedroom Two 3.269m x 3.478m
A double bedroom incorporating a double glazed window to rear and a radiator.
Bedroom Three 2.239m x 2.798m max
Incorporating a double glazed window to front, radiator and stairs recess.
Bathroom 2.217m max x 2.343m max
Incorporating a three piece site comprising of a bath with shower over and shower attachment, pedestal wash hand basin and WC. Double glazed obscured window to rear, heated towel rail, tiled splash areas and extractor fan.
Outside
The property is approached by on site parking for one vehicle leading to the garage. There is also a lawn area, flower and shrub beds, outside power point and gated access to the side. To the rear and side of the property there is a timber decked seating area, lawn area, outside tap and flower and shrub beds.
Floor Plan
Please note, the floor plan is not to scale and should be used for illustrative purposes only.
EPC Band C
https://find-energy-certificate.service.gov.uk/energy-certificate/2100-3134-0160-9003-9121
Tenure
The property is Freehold.
Council Tax
The property is in Council Tax Band B.
Viewings
Strictly through arranged appointments by Vicinity Homes. To arrange a viewing, please contact: T: 01228 599011 or E: sales@vicinityhomes.co.uk.
Referral Fees
We routinely refer potential purchasers to Mortgage Advisers - Fisher Financial Associates. It is your decision whether you choose to deal with Fisher Financial Associates. In making that decision, you should know that we will receive commission from the company worth approximately £50 depending on any business written.
Referral Fees - Vicinity Homes work with preferred conveyancers for a house sale or purchase. You are under no obligation to use their services. Should you choose to use them, Vicinity Homes Estate Agents will receive a referral fee of between £120.00 to £150.00 on completion of a sale or purchase.
Misrepresentation Act 1967
These particulars, whilst believed to be accurate, are set out for guidance only and do not constitute any part of an offer or contract - intending purchasers should not rely on them as statements or representations of fact, but must satisfy themselves by inspection or otherwise as to their accuracy. All electrical appliances mentioned in these details have not been tested and therefore cannot be guaranteed to be in working order.
Mailing List
To register your buying information and receive updates on all our available properties, please contact Vicinity Homes on 01228 599011 or via email to sales@vicinityhomes.co.uk.
Free, No Obligation Valuation
We would be pleased to provide you with a free, no obligation valuation for your home. Please contact Vicinity Homes on 01228 599011 or via email to sales@vicinityhomes.co.uk to arrange an appointment.




































































