Walkmill Crescent, Carlisle
Property Summary
Full Details
Directions
Proceed East along Warwick Road. Turn right onto Walkmill Crescent and follow the road to the left hand side into the Kingfisher Park Development. The property is situated on the right hand side, opposite the entrance to Curlew Walk and can be identified by our "For Sale" sign.
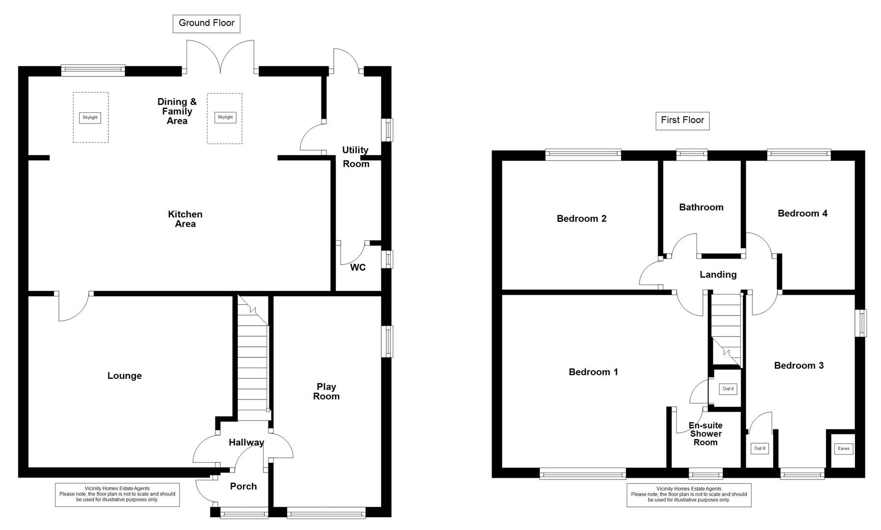
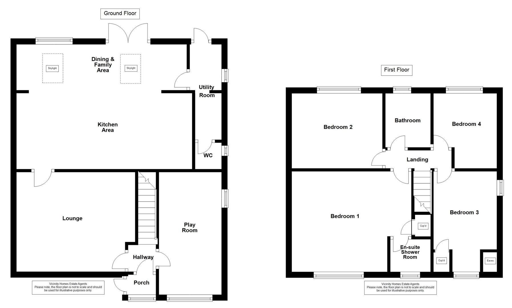
Entrance Porch 1.486m x 1.005m
Approached by a door to side, large double glazed window with two openings and tiled floor.
Hallway
Incorporating coving to the ceiling and stairs to the first floor.
Play Room 5.110m x 2.348m
Incorporating a double glazed window to front, double glazed window to side, radiator and built in storage.
Lounge 4.050m x 4.083m
Incorporating a double glazed window to front, radiator, LVT flooring and a feature fireplace.
Dining Kitchen & Family Room 5.474m max x 5.778m max
Incorporating a range of modern fitted wall and base units with complementary work surface over, integrated oven and integrated five ring gas hob with cooker hood over. Integrated dishwasher, 1.5 sink unit with mixer tap, space for a fridge/freezer, inset ceiling lights and wine cooler. Double glazed window to rear, two double glazed skylights to rear, double glazed french doors to rear, two radiators and LVT flooring.
Utility Room 4.196m x 1.667m
Incorporating a modern fitted wall units with complementary work surface and plumbing for a washing machine. Double glazed window to side, door to rear, radiator, LVT flooring, extractor fan and inset ceiling lights.
Cloakroom/WC 1.537m x 1.206m
Incorporating a wash hand basin set to vanity unit, WC, double glazed obscured window to side, radiator, LVT flooring and tiled splash areas.
First Floor Landing
Bedroom One 4.090m x 3.448m
A double bedroom incorporating a double glazed window to front, radiator and built in storage cupboard.
En Suite Shower Room 1.773m x 1.550m
Incorporating a modern three piece suite comprising of a shower cubicle with waterfall shower over & attachment, wash hand basin set to vanity unit and WC. Double glazed obscured window to front, heated towel rail, tiled splash areas and extractor fan.
Bedroom Two 3.495m x 2.878m
A double bedroom incorporating a double glazed window to rear, radiator and loft access with a pull down ladder. The loft has lighting and is boarded.
Bedroom Three 3.999m max x 3.209m min x 2.459m
A double bedroom incorporating a double glazed window to front, double glazed window to side, radiator and built in storage cupboard.
Bedroom Four 3.209m max x 2.792m max x 1.899m min
Incorporating a double glazed window to rear and a radiator.
Bathroom 2.083m x 1.888m
Incorporating a three piece comprises of a bath with shower over, wash hand basin set to vanity unit and WC. Double glazed obscured window to rear, heated towel rail, tiling to all walls, tiled floor, panelled ceiling and extractor fan.
Outside
The property is approached by on site parking for two vehicles and a front garden with lawn area and shrubs. To the rear of the property there is a good sized rear garden with lawn area, patio seating area, outside power point, outside tap, garden shed and gated access to the front.
Estate Agents Note
Please note, this property has NEVER flooded.
Floor Plan
Please note, the floor plan is not to scale and should be used for illustrative purposes only.
EPC Band C
https://find-energy-certificate.service.gov.uk/energy-certificate/0227-0200-8406-7561-8114
Council Tax
The property is in Council Tax Band D.
Tenure
The property is Freehold.
Viewings
Strictly through arranged appointments by Vicinity Homes. To arrange a viewing, please contact: T: 01228 599011 or E: sales@vicinityhomes.co.uk.
Referral Fees
We routinely refer potential purchasers to Mortgage Advisers - Fisher Financial Associates. It is your decision whether you choose to deal with Fisher Financial Associates. In making that decision, you should know that we will receive commission from the company worth approximately £50 depending on any business written.
Referral Fees - Vicinity Homes work with preferred conveyancers for a house sale or purchase. You are under no obligation to use their services. Should you choose to use them, Vicinity Homes Estate Agents will receive a referral fee of between £120.00 to £150.00 on completion of a sale or purchase.
Misrepresentation Act 1967
These particulars, whilst believed to be accurate, are set out for guidance only and do not constitute any part of an offer or contract - intending purchasers should not rely on them as statements or representations of fact, but must satisfy themselves by inspection or otherwise as to their accuracy. All electrical appliances mentioned in these details have not been tested and therefore cannot be guaranteed to be in working order.
Mailing List
To register your buying information and receive updates on all our available properties, please contact Vicinity Homes on 01228 599011 or via email to sales@vicinityhomes.co.uk.
Free, No Obligation Valuation
We would be pleased to provide you with a free, no obligation valuation for your home. Please contact Vicinity Homes on 01228 599011 or via email to sales@vicinityhomes.co.uk to arrange an appointment.


























































































