Vasey Crescent, Carlisle
Property Summary
Full Details
Directions
Proceed East along Warwick Road and turn right onto Greystone Road. Turn right onto Norman Street and continue straight ahead onto Vasey Crescent. Follow the road and the property is situated on the left hand side.
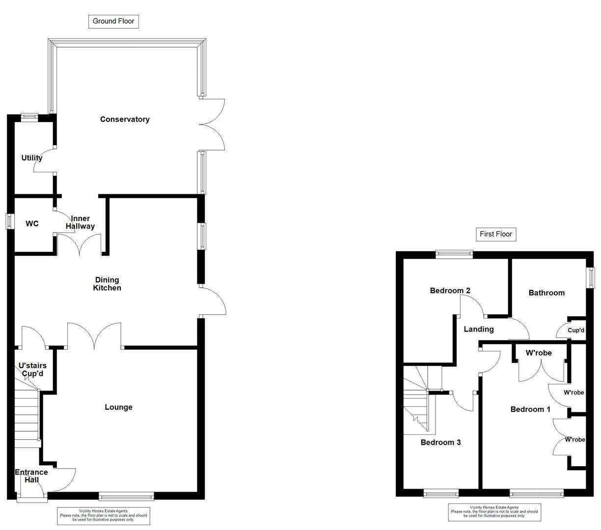
Entrance Hallway
Approached by a door to front, incorporating a radiator, laminate floor and stairs to the first floor.
Lounge 4.076m x 3.635m
Incorporating a double glazed window to front, electric heater, french doors to the dining kitchen and a feature fireplace with surround, inset and hearth.
Dining Kitchen 5.484m max x 4.298m max x 2.711m min
Incorporating a range of fitted wall and base units with complementary work surface over, breakfast bar, integrated and integrated hob with cooker hood over. Tiled splash areas, sink unit with mixer tap, integrated dishwasher, space for a fridge/freezer, double glazed window to side and door to side. Radiator, tiled floor, under stairs storage cupboard and double glazed french doors to the conservatory.
Inner Hallway
Incorporating laminate floor.
Cloakroom/WC 1.517m x 0.996m
Incorporating a wash hand basin, WC, obscured window to side, radiator and laminate floor.
Utility Room 1.928m x 1.230m
Incorporating plumbing for a washing machine, space for a tumble drier, work surface and double glazed obscured window to rear.
Conservatory 5.283m x 3.560m
Incorporating double glazed french doors to side, two radiators and laminate floor.
First Floor Landing
Incorporating loft access with a pull down ladder.
Bedroom One 3.662m x 2.587m
A double bedroom incorporating a double glazed window to front, radiator, fitted wardrobe/storage and laminate floor.
Bedroom Two 3.515m max x 2.719m max
A double bedroom incorporating a double glazed window to rear and a radiator.
Bedroom Three 2.637m max x 2.790m max
Incorporating a double glazed window to front and a radiator.
Bathroom 2.709m x 1.819m
Incorporating a modern three piece suite comprising of a bath with waterfall shower over & shower attachment, wash hand basin set to vanity unit and WC. Double glazed obscured window to side, radiator, splash backs, laminate floor and built in storage cupboard.
Outside
The property is approached by a front garden with shillied areas and gated access to the side. To the side & rear of the property there is a spacious garden with lawn area, patio seating area, flower & shrub beds, outside tap and outside power point.
Floor Plan
Please note, the floor plan is not to scale and should be used for illustrative purposes only.
EPC Band D
https://find-energy-certificate.service.gov.uk/energy-certificate/8335-1022-3209-0241-9292
Tenure
The property is Freehold.
Council Tax
The property is in Council Tax Band A.
Viewings
Strictly through arranged appointments by Vicinity Homes. To arrange a viewing, please contact: T: 01228 599011 or E: sales@vicinityhomes.co.uk.
Referral Fees
We routinely refer potential purchasers to Mortgage Advisers - Fisher Financial Associates. It is your decision whether you choose to deal with Fisher Financial Associates. In making that decision, you should know that we will receive commission from the company worth approximately £50 depending on any business written.
Referral Fees - Vicinity Homes work with preferred conveyancers for a house sale or purchase. You are under no obligation to use their services. Should you choose to use them, Vicinity Homes Estate Agents will receive a referral fee of between £120.00 to £150.00 on completion of a sale or purchase.
Misrepresentation Act 1967
These particulars, whilst believed to be accurate, are set out for guidance only and do not constitute any part of an offer or contract - intending purchasers should not rely on them as statements or representations of fact, but must satisfy themselves by inspection or otherwise as to their accuracy. All electrical appliances mentioned in these details have not been tested and therefore cannot be guaranteed to be in working order.
Mailing List
To register your buying information and receive updates on all our available properties, please contact Vicinity Homes on 01228 599011 or via email to sales@vicinityhomes.co.uk.
Free, No Obligation Valuation
We would be pleased to provide you with a free, no obligation valuation for your home. Please contact Vicinity Homes on 01228 599011 or via email to sales@vicinityhomes.co.uk to arrange an appointment.




























































