Thomlinson Avenue, Carlisle
Property Summary
Full Details
Directions
Proceed West along Newtown Road. Turn left onto Shadygrove Road and straight ahead at the cross roads. Turn left onto Thomlinson Avenue. The property is situated on the right hand side and can be identified by our "For Sale" sign.
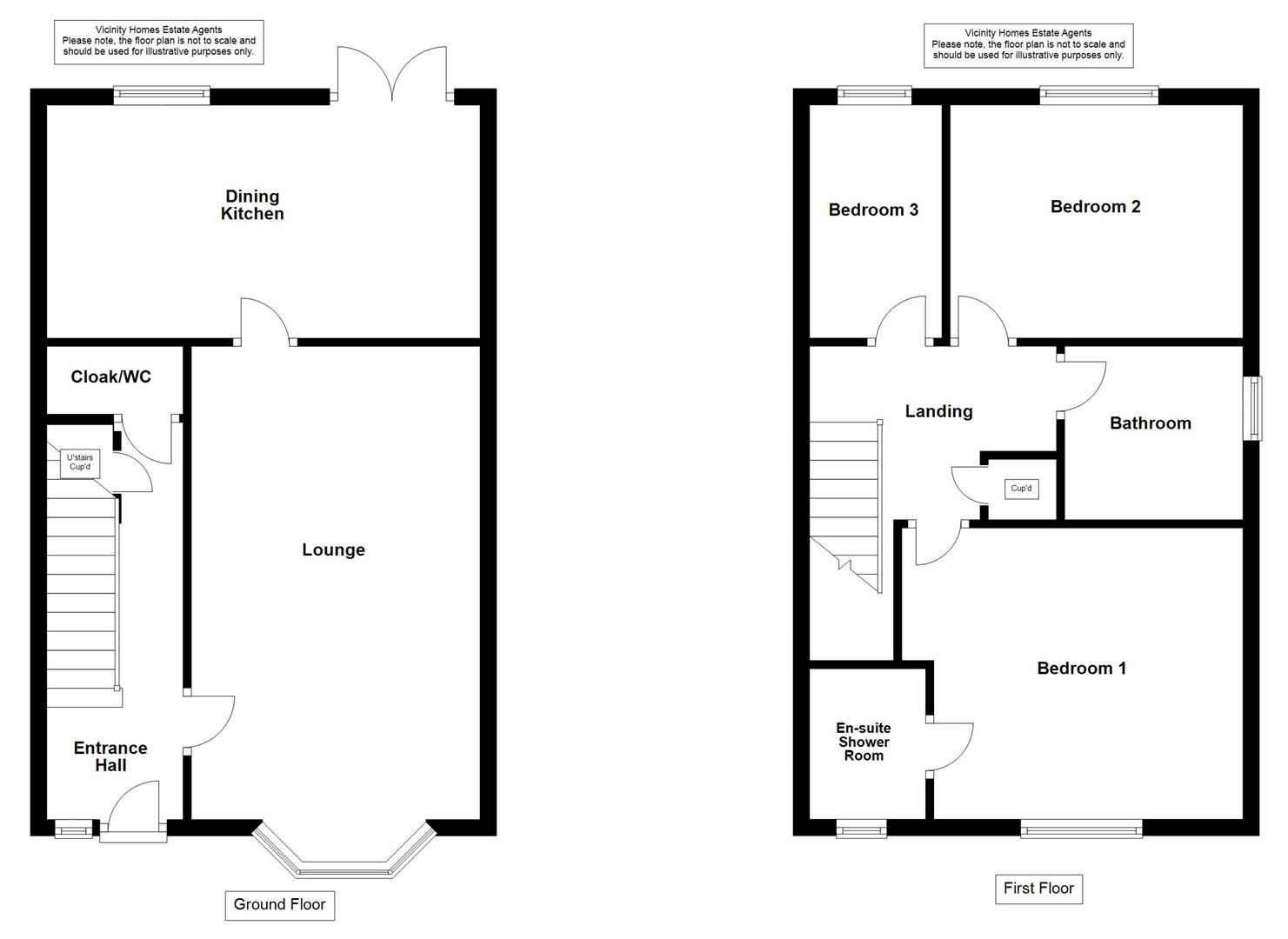
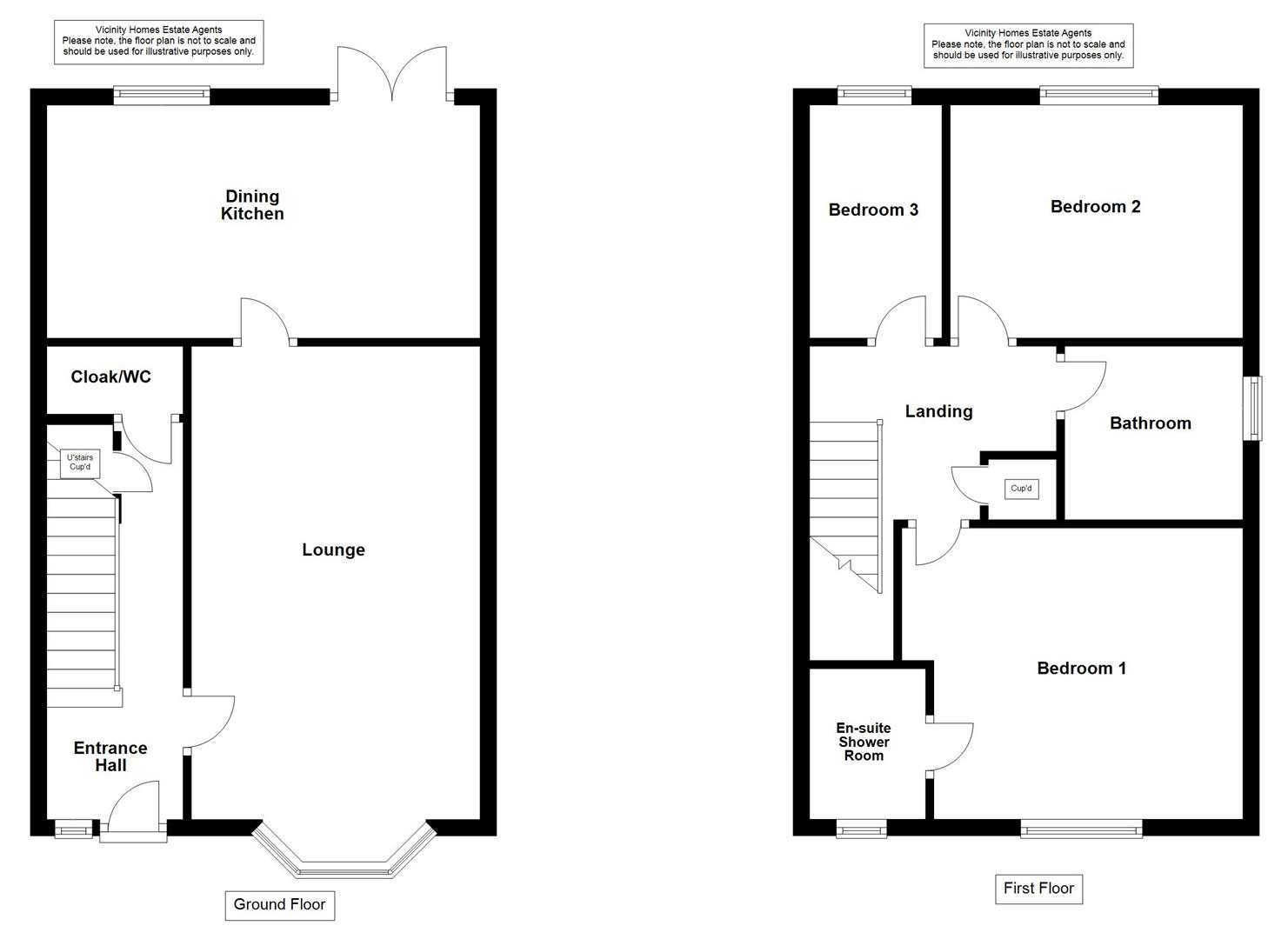
Entrance Hallway
Approached by a door to front, incorporating a double glazed window to front, radiator, under stairs storage cupboard and stairs to the first floor.
Cloakroom/WC 2.013m x 1.096m
Incorporating a wash hand basin, WC, tiled splash areas, tiled floor, radiator, inset ceiling lights and extractor fan.
Lounge 5.637m max x 3.116m
Incorporating a double glazed bay window to front and a radiator.
Dining Kitchen 5.202m x 2.983m
Incorporating a range of fitted wall and base units with complementary work surface over, integrated oven and integrated hob with cooker hood over. Integrated fridge, integrated freezer, integrated washing machine and 1.5 sink unit with mixer tap. Tiled splash areas, double glazed window to rear, double glazed french doors to rear, radiator, tiled floor and inset ceiling lights.
First Floor Landing
Incorporating a radiator, built in storage cupboard and loft access.
Bedroom One 4.113m max x 3.499m min x 3.134m
A double bedroom incorporating a double glazed window to front and a radiator.
En Suite Shower Room 1.701m x 1.664m
Incorporating a three piece suite comprising of a shower cubicle, wash hand basin and WC. Double glazed obscured window to front, radiator, tiled floor, tiled splash areas, extractor fan and inset ceiling lights.
Bedroom Two 3.090m x 2.756m
A double bedroom incorporating a double glazed window to rear and a radiator.
Bedroom Three 2.621m x 2.047m
Incorporating a double glazed window to rear and a radiator.
Bathroom 2.072m x 1.740m
Incorporating a three piece suite comprising of a bath with shower over & mixer tap, wash hand basin and WC. Double glazed obscured window to side, heated towel rail, tiled floor, tiled splash areas and inset ceiling lights.
Outside
The property is approached by on site parking, grassed area and flower & shrub beds. To the rear of the property there is a good sized garden with grassed area, patio seating area and gated access to the front.
Floor Plan
Please note, the floor plan is not to scale and should be used for illustrative purposes only.
EPC Band C
https://find-energy-certificate.service.gov.uk/energy-certificate/7690-7523-0322-7593-3953
Council Tax
The property is in Council Tax Band B.
Viewings
Strictly through arranged appointments by Vicinity Homes. To arrange a viewing, please contact: T: 01228 599011 or E: sales@vicinityhomes.co.uk.
Referral Fees
We routinely refer potential purchasers to Mortgage Advisers - Fisher Financial Associates. It is your decision whether you choose to deal with Fisher Financial Associates. In making that decision, you should know that we will receive commission from the company worth approximately £50 depending on any business written.
Referral Fees - Vicinity Homes work with preferred conveyancers for a house sale or purchase. You are under no obligation to use their services. Should you choose to use them, Vicinity Homes Estate Agents will receive a referral fee of between £120.00 to £150.00 on completion of a sale or purchase.
Misrepresentation Act 1967
These particulars, whilst believed to be accurate, are set out for guidance only and do not constitute any part of an offer or contract - intending purchasers should not rely on them as statements or representations of fact, but must satisfy themselves by inspection or otherwise as to their accuracy. All electrical appliances mentioned in these details have not been tested and therefore cannot be guaranteed to be in working order.
Mailing List
To register your buying information and receive updates on all our available properties, please contact Vicinity Homes on 01228 599011 or via email to sales@vicinityhomes.co.uk.
Free, No Obligation Valuation
We would be pleased to provide you with a free, no obligation valuation for your home. Please contact Vicinity Homes on 01228 599011 or via email to sales@vicinityhomes.co.uk to arrange an appointment.


















































