St. Edmunds Park, Carlisle
Property Summary
Full Details
Directions
Proceed West along Wigton Road. Turn right at the traffic lights onto Orton Road and continue on this road heading towards the outskirts of Carlisle. Turn left onto St Edmunds Park and left again. The property is situated on the right hand side and can be identified by our "For Sale" sign.
Entrance Hallway
Approached by a door to front, incorporating a radiator, tiled floor, coving to the ceiling and stairs to the first floor.
Lounge 4.114m max x 4.086m max
Incorporating a double glazed window to front, radiator, feature fireplace and coving to the ceiling.
Dining Kitchen 5.076m x 2.978m
Incorporating a range of modern fitted wall and base units with complementary work surface over, oven point and cooker hood over. Sink unit with mixer tap, plumbing for a washing machine, space for a fridge/freezer, double glazed window to rear and double glazed french doors to rear. Radiator, laminate floor, under stairs storage cupboard and inset ceiling lights.
Garden Room 3.087m x 2.821m
Incorporating double glazed french doors to rear, laminate floor, inset ceiling lights and a door into the garage.
First Floor Landing
Incorporating a double glazed window to side, loft access, built in storage cupboards and coving to the ceiling.
Bedroom One 3.053m x 2.989m to wardrobe front
A double bedroom incorporating a double glazed window to rear, radiator, fitted wardrobe/storage and coving to the ceiling.
View From Bedroom One
Bedroom One has fantastic views from the rear of the property.
Bedroom Two 3.073m to wardrobe front x 2.729m
A double bedroom incorporating a double glazed window to front, radiator, fitted wardrobe/storage and coving to the ceiling.
Bedroom Three 2.297m x 2.029m
Incorporating a double glazed window to front and a radiator.
Bathroom 1.939m 1.673m
Incorporating a modern three piece suite comprising of a bath with shower over, wash hand basin set to vanity unit and WC. Double glazed obscured window to rear, modern radiator, vinyl flooring, tiling to all walls, inset ceiling lights, panelled ceiling and extractor fan.
Outside
The property is approached by block paved on site parking for approximately two/three vehicles leading to the integral garage. To the rear of the property there is a generous sized garden with patio seating areas, outside tap and gated access to the front.
Integral Garage 4.910m x 2.722m
Incorporating an electric up and over door, power, lighting and door into the garden room.
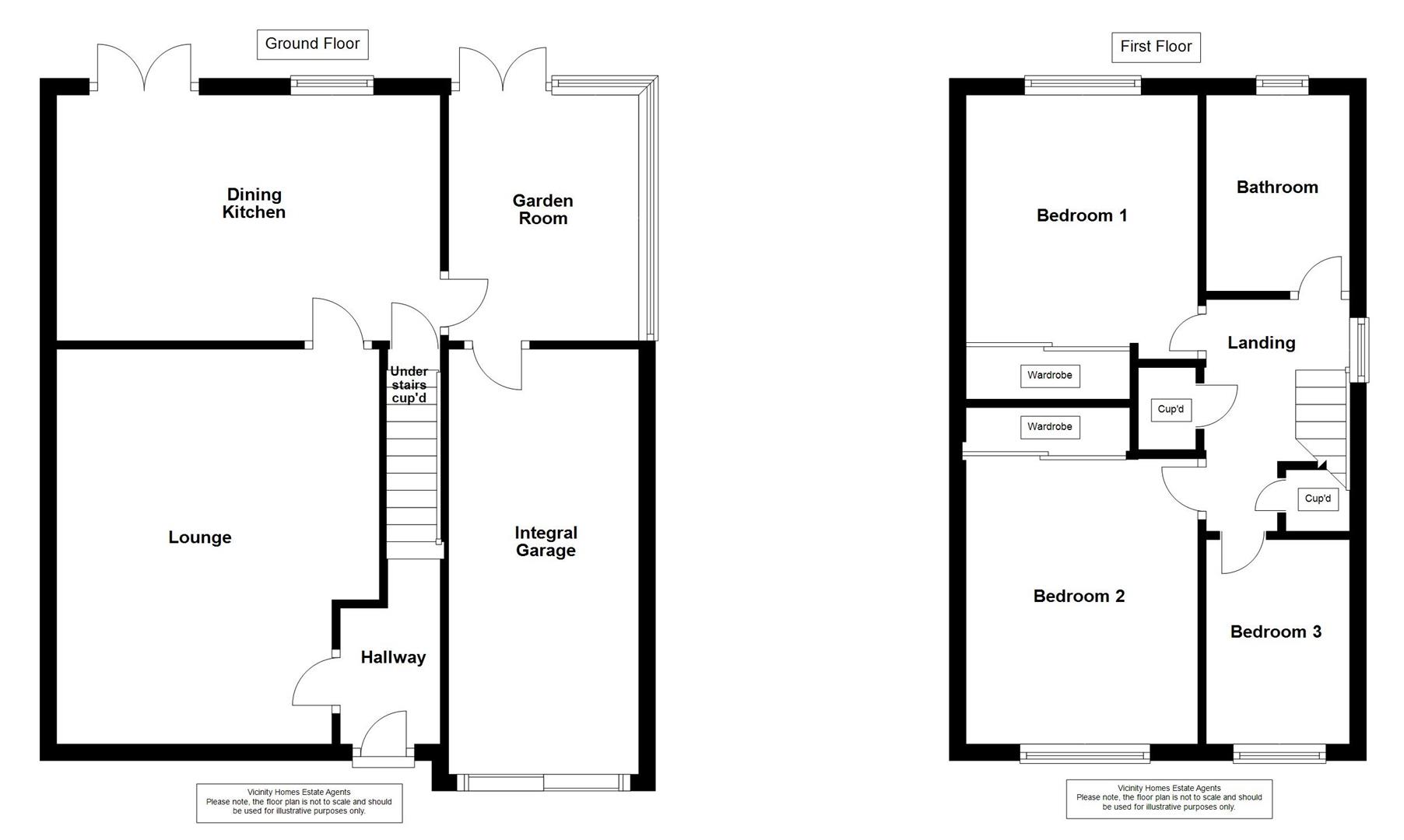
Floor Plan
Please note, the floor plan is not to scale and should be used for illustrative purposes only.
EPC Band D
https://find-energy-certificate.service.gov.uk/energy-certificate/4535-7429-2509-0400-6296
Council
The property is in Council Tax Band B.
Tenure
The property is Freehold.
Viewings
Strictly through arranged appointments by Vicinity Homes. To arrange a viewing, please contact: T: 01228 599011 or E: sales@vicinityhomes.co.uk.
Referral Fees
We routinely refer potential purchasers to Mortgage Advisers - Fisher Financial Associates. It is your decision whether you choose to deal with Fisher Financial Associates. In making that decision, you should know that we will receive commission from the company worth approximately £50 depending on any business written.
Referral Fees - Vicinity Homes work with preferred conveyancers for a house sale or purchase. You are under no obligation to use their services. Should you choose to use them, Vicinity Homes Estate Agents will receive a referral fee of between £120.00 to £150.00 on completion of a sale or purchase.
Misrepresentation Act 1967
These particulars, whilst believed to be accurate, are set out for guidance only and do not constitute any part of an offer or contract - intending purchasers should not rely on them as statements or representations of fact, but must satisfy themselves by inspection or otherwise as to their accuracy. All electrical appliances mentioned in these details have not been tested and therefore cannot be guaranteed to be in working order.
Mailing List
To register your buying information and receive updates on all our available properties, please contact Vicinity Homes on 01228 599011 or via email to sales@vicinityhomes.co.uk.
Free, No Obligation Valuation
We would be pleased to provide you with a free, no obligation valuation for your home. Please contact Vicinity Homes on 01228 599011 or via email to sales@vicinityhomes.co.uk to arrange an appointment.




































































