Newlaithes Avenue, Carlisle
Property Summary
Full Details
Directions
Proceed West along Castle Way. Turn left at the traffic lights onto Shaddongate and continue straight ahead onto Dalston Road. Turn right onto Dunmail Drive and left onto Langrigg Road. Turn left onto Newlaithes Avenue. The property is situated on the left hand side and can be identified by our "For Sale" sign.
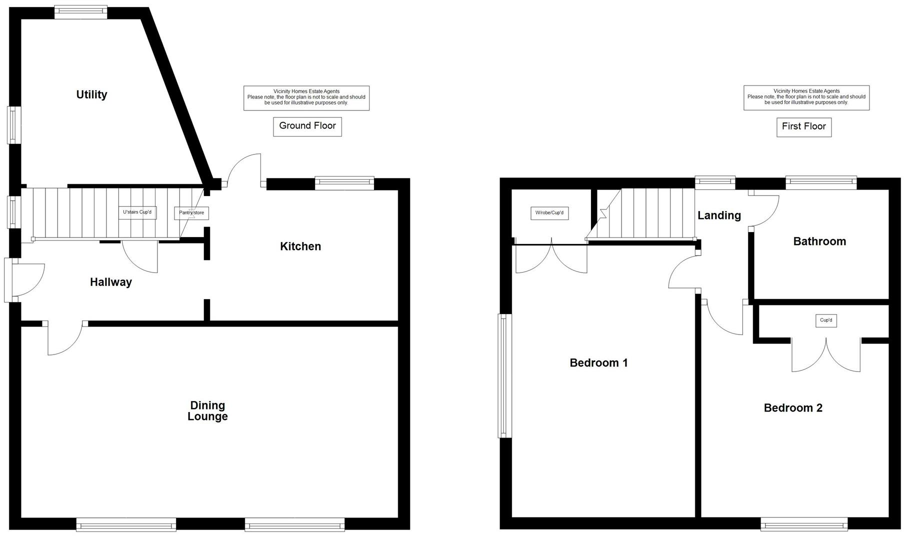
Entrance Hallway
Approached by a door to side, incorporating a radiator, vinyl flooring, under stairs storage cupboard and stairs to the first floor.
Kitchen 2.957m x 2.159m
Incorporating a range of fitted wall and base units with complementary work surface over, integrated oven and integrated hob with cooker hood over. Sink unit with mixer tap, plumbing for a dishwasher and space for under counter fridge and freezer. Double glazed window to rear, door to rear, store/pantry area and vinyl flooring.
Utility Room 3.547m max x 1.684m min x 2.579m max
Incorporating a work surface, plumbing for a washing machine, space for a tumble drier, double glazed obscured window to side, double glazed window to rear and a radiator.
Dining Lounge 5.687m x 3.403m
Incorporating two double glazed windows to front and two radiators.
First Floor Landing
Incorporating a double glazed window to rear and loft access with a pull down ladder.
Bedroom One 4.649m x 2.721m
A double bedroom incorporating a double glazed window to side, radiator and built in storage/wardrobe.
Bedroom Two 2.891m x 2.991m min
A double bedroom incorporating a double glazed window to front, radiator and built in storage cupboard.
Bathroom 1.934m x 1.683m
Incorporating a three piece suite comprising of a bath with shower over, pedestal wash hand basin and WC. Double glazed obscured window to rear, radiator and tiling to all walls.
Outside
The property is approached by a driveway and shillied area with double gated access to the rear garden. To the rear of the property there is a good sized garden with a patio seating area, lawn area, outside tap, spacious garage and store.
Garage 4.853m x 5.589m
Incorporating an up and over door, door to the garden, power and lighting.
Floor Plan
Please note, the floor plan is not to scale and should be used for illustrative purposes only.
EPC Band C
https://find-energy-certificate.service.gov.uk/energy-certificate/9615-1086-9102-0294-1502
Council Tax
The property is in Council Tax Band A.
Tenure
The property is Freehold.
Viewings
Strictly through arranged appointments by Vicinity Homes. To arrange a viewing, please contact: T: 01228 599011 or E: sales@vicinityhomes.co.uk.
Referral Fees
We routinely refer potential purchasers to Mortgage Advisers - Fisher Financial Associates. It is your decision whether you choose to deal with Fisher Financial Associates. In making that decision, you should know that we will receive commission from the company worth approximately £50 depending on any business written.
Referral Fees - Vicinity Homes work with preferred conveyancers for a house sale or purchase. You are under no obligation to use their services. Should you choose to use them, Vicinity Homes Estate Agents will receive a referral fee of between £120.00 to £150.00 on completion of a sale or purchase.
Misrepresentation Act 1967
These particulars, whilst believed to be accurate, are set out for guidance only and do not constitute any part of an offer or contract - intending purchasers should not rely on them as statements or representations of fact, but must satisfy themselves by inspection or otherwise as to their accuracy. All electrical appliances mentioned in these details have not been tested and therefore cannot be guaranteed to be in working order.
Mailing List
To register your buying information and receive updates on all our available properties, please contact Vicinity Homes on 01228 599011 or via email to sales@vicinityhomes.co.uk.
Free, No Obligation Valuation
We would be pleased to provide you with a free, no obligation valuation for your home. Please contact Vicinity Homes on 01228 599011 or via email to sales@vicinityhomes.co.uk to arrange an appointment.






























































