Moorside Drive, Carlisle
Property Summary
Full Details
Directions
From Carlisle City Centre proceed South along London Road. Turn left at the traffic lights onto Cumwhinton Road. Continue on this road. Turn left at the round about onto Garlands Road. Take the second turning onto Hunters Crescent and turn right onto Moorside Drive. Continue on this road heading into the Gleeson Homes Moorside Place Development. Continue up the hill turning left at the T junction. The property is situated on the right hand side.
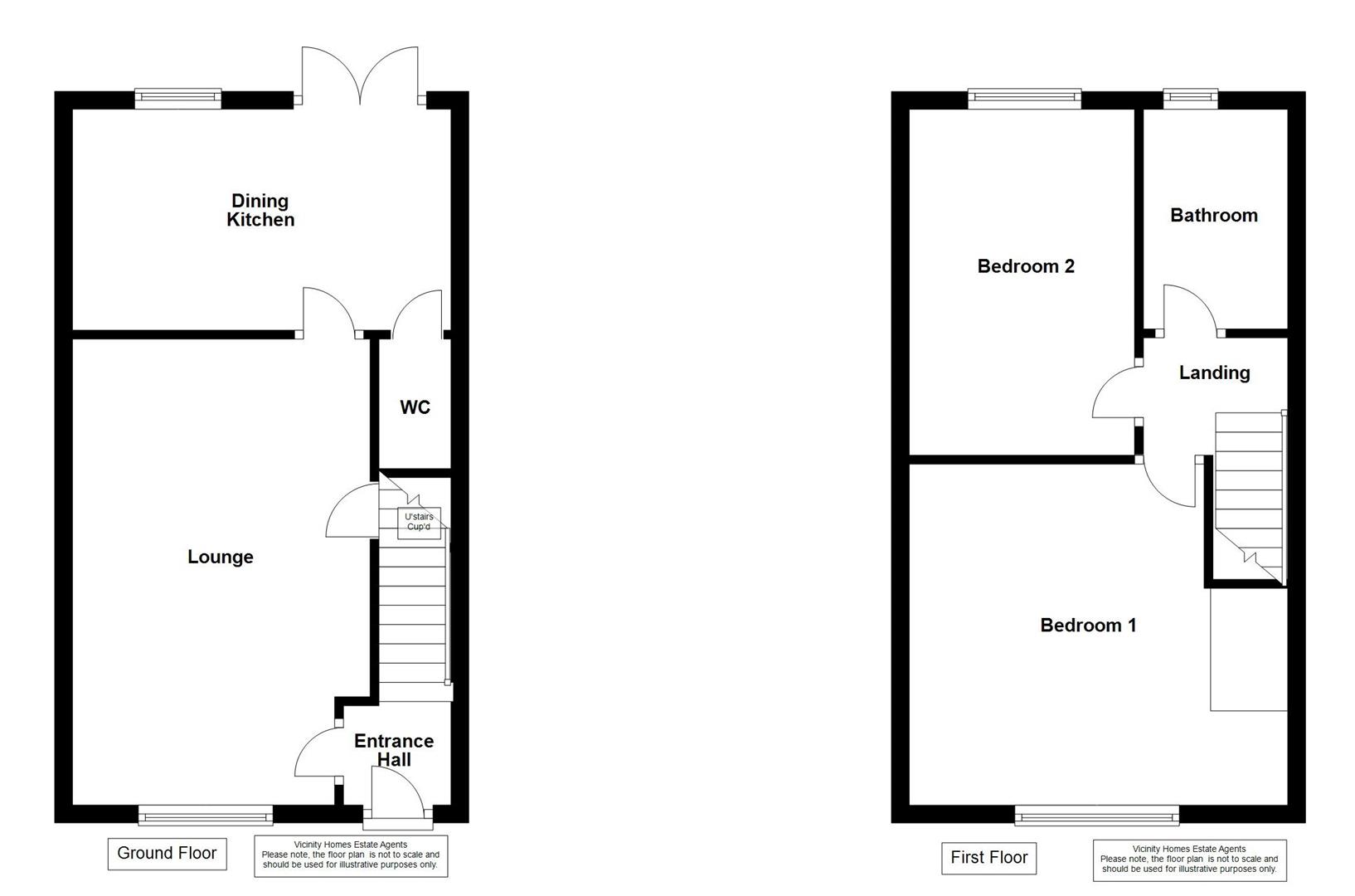
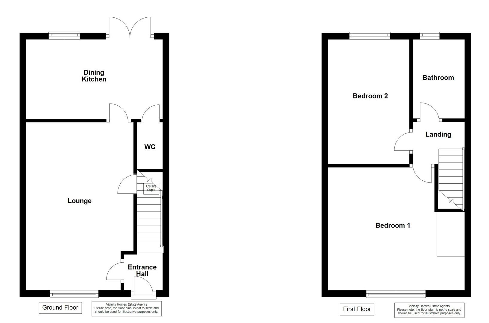
Entrance Hallway
Approached by a door to front, incorporating a radiator and stairs to the first floor.
Lounge 4.605m x 3.048m
Incorporating a double glazed window to front, radiator and under stairs storage cupboard.
Cloakroom/WC 1.630m x 0.972m
Incorporating a pedestal wash hand basin, WC, radiator, tiled splash areas and extractor fan.
Dining Kitchen 4.107m x 2.390m
Incorporating a range of modern fitted wall and base units with complementary work surface over, integrated oven and integrated hob with cooker hood over. Sink unit with mixer tap, plumbing for a washing machine, space for a fridge/freezer, double glazed window to rear, double glazed french doors to rear and a radiator.
First Floor Landing
Incorporating a radiator and loft access.
Bedroom One 4.128m max x 3.048m
A double bedroom incorporating a double glazed window to front and a radiator.
Bedroom Two 3.929m x 2.204m
A double bedroom incorporating a double glazed window to rear and a radiator.
Bathroom 2.227m x 1.810m
Incorporating a modern three piece suite comprising of a bath with shower attachment & shower over, pedestal wash hand basin and WC. Double glazed obscured window to rear, radiator, tiling to all walls and extractor fan.
Outside
The property is approached by a front lawn area and on site parking leading down the side of the house for approximately two vehicles. To the rear of the property there is a good sized enclosed garden with grassed area, patio seating area and gated access to the front.
Floor Plan
Please note, the floor plan is not to scale and should be used for illustrative purposes only.
EPC Band B
https://find-energy-certificate.service.gov.uk/energy-certificate/9294-3907-6302-2327-0200
Council Tax
The property is in Council Tax Band C.
Tenure
The property is Freehold.
Estate Agents Note
Please note, we have been informed by the vendor there will be an annual development upkeep fee payable of £68.00.
Viewings
Strictly through arranged appointments by Vicinity Homes. To arrange a viewing, please contact: T: 01228 599011 or E: sales@vicinityhomes.co.uk.
Referral Fees
We routinely refer potential purchasers to Mortgage Advisers - Fisher Financial Associates. It is your decision whether you choose to deal with Fisher Financial Associates. In making that decision, you should know that we will receive commission from the company worth approximately £50 depending on any business written.
Referral Fees - Vicinity Homes work with preferred conveyancers for a house sale or purchase. You are under no obligation to use their services. Should you choose to use them, Vicinity Homes Estate Agents will receive a referral fee of between £120.00 to £150.00 on completion of a sale or purchase.
Misrepresentation Act 1967
These particulars, whilst believed to be accurate, are set out for guidance only and do not constitute any part of an offer or contract - intending purchasers should not rely on them as statements or representations of fact, but must satisfy themselves by inspection or otherwise as to their accuracy. All electrical appliances mentioned in these details have not been tested and therefore cannot be guaranteed to be in working order.
Mailing List
To register your buying information and receive updates on all our available properties, please contact Vicinity Homes on 01228 599011 or via email to sales@vicinityhomes.co.uk.
Free, No Obligation Valuation
We would be pleased to provide you with a free, no obligation valuation for your home. Please contact Vicinity Homes on 01228 599011 or via email to sales@vicinityhomes.co.uk to arrange an appointment.


























































