Jackson Road, Houghton, Carlisle
Property Summary
Full Details
Directions
From Carlisle head North along Brampton Road and turn left where signposted for Houghton. Follow the road into the village. Passing the School, take the second right onto Jackson Road. The property is situated on the left hand side.
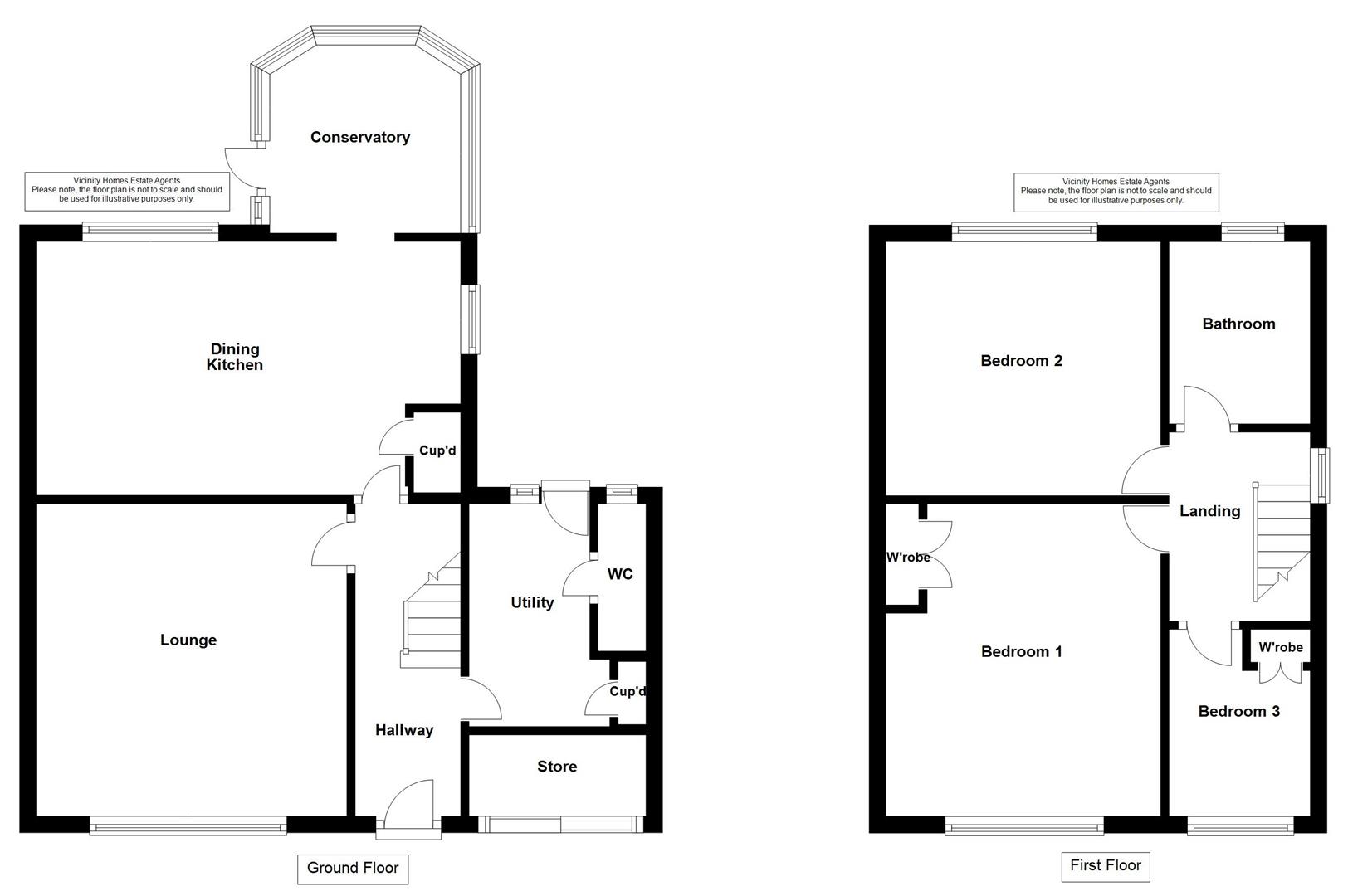
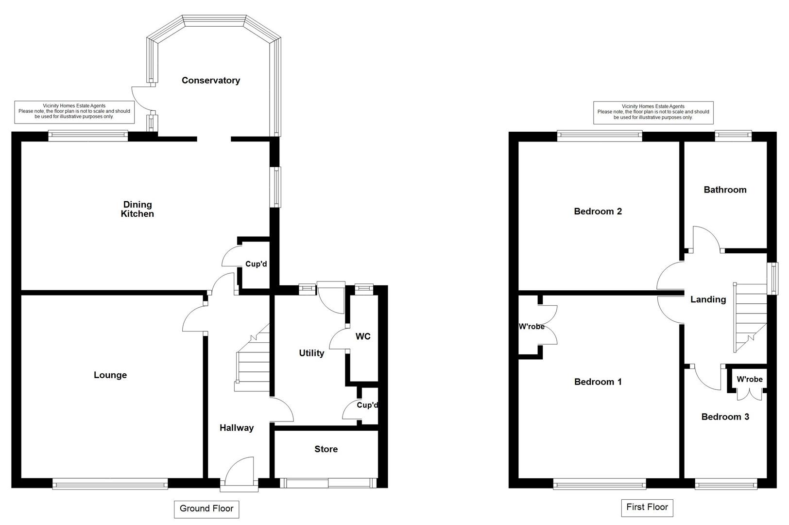
Entrance Hallway
Approached by a door to front, incorporating laminate floor, radiator and stairs to the first floor.
Utility Room 3.042m x 1.967m
Incorporating a range of modern fitted wall and base units with complementary work surface over, plumbing for a washing machine and space for a tumble dryer. Double glazed window to rear, door to rear, tiled floor, built in storage cupboard and inset ceiling lights.
Cloakroom/WC 1.887m x 0.792m
Incorporating a wash hand basin set to vanity unit, WC, double glazed obscured window to rear, heated towel rail, tiled floor and extractor fan.
Lounge 3.944m x 3.520m
Incorporating a double glazed window front and a radiator.
Dining Kitchen 5.605m x 3.421m
Incorporating a range modern fitted wall and base units with complementary work surface over, breakfast bar, integrated oven and integrated hob. Integrated fridge, integrated freezer, integrated dishwasher and 1.5 sink unit with mixer tap. Double glazed window to side, double glazed window to rear, two radiators, tiled floor and under stairs storage cupboard.
Conservatory 3.550m x 2.624m
Incorporating a door to side and a radiator.
First Floor Landing
Incorporating a double glazed window to side and loft access with pull down ladder.
Bedroom One 4.035m x 3.281m
A double bedroom incorporating a double glazed window to front, radiator and fitted wardrobe/storage.
Bedroom Two 3.399m x 3.283m
A double bedroom incorporating a double glazed window to rear and a radiator.
Bedroom Three 2.795m x 2.226m
Incorporating a double glazed window to front, radiator and fitted wardrobe/storage.
Bathroom 2.340m x 2.188m
Incorporating a modern four piece suite comprising of a bath with mixer tap, shower cubicle with waterfall shower & attachment, wash hand basin set to vanity unit and WC. Double glazed obscured window to rear, heated towel rail, tiling to all walls, panelled ceiling, laminate floor, extractor fan and inset ceiling lights.
Outside
The property is approached by shillied on site parking and a lawn area with flower & shrub beds. There is also a store with an electric door. To the rear of the property there is a good sized garden with patio seating areas, raised flower & shrub beds, barked play area, outside tap, outside power point and gated access to the front.
Store 2.781m x 1.544m
Incorporating an electric door, power and lighting.
Floor Plan
Please note, the floor plan is not to scale and should be used for illustrative purposes only.
EPC Band D
https://find-energy-certificate.service.gov.uk/energy-certificate/9536-3629-6500-0039-8276
Tenure
The property is Freehold.
Council Tax
The property is in Council Tax Band C.
Viewings
Strictly through arranged appointments by Vicinity Homes. To arrange a viewing, please contact: T: 01228 599011 or E: sales@vicinityhomes.co.uk.
Referral Fees
We routinely refer potential purchasers to Mortgage Advisers - Fisher Financial Associates. It is your decision whether you choose to deal with Fisher Financial Associates. In making that decision, you should know that we will receive commission from the company worth approximately £50 depending on any business written.
Referral Fees - Vicinity Homes work with preferred conveyancers for a house sale or purchase. You are under no obligation to use their services. Should you choose to use them, Vicinity Homes Estate Agents will receive a referral fee of between £120.00 to £150.00 on completion of a sale or purchase.
Misrepresentation Act 1967
These particulars, whilst believed to be accurate, are set out for guidance only and do not constitute any part of an offer or contract - intending purchasers should not rely on them as statements or representations of fact, but must satisfy themselves by inspection or otherwise as to their accuracy. All electrical appliances mentioned in these details have not been tested and therefore cannot be guaranteed to be in working order.
Mailing List
To register your buying information and receive updates on all our available properties, please contact Vicinity Homes on 01228 599011 or via email to sales@vicinityhomes.co.uk.
Free, No Obligation Valuation
We would be pleased to provide you with a free, no obligation valuation for your home. Please contact Vicinity Homes on 01228 599011 or via email to sales@vicinityhomes.co.uk to arrange an appointment.














































































