Holme Meadow, Cumwhinton, Carlisle
Property Summary
Full Details
Directions
Heading into Cumwhinton from Carlisle on Cumwhinton Road. Turn left at the Pub and turn right onto Holme Meadow. The property is situated at the bottom of the cul-de-sac on the right hand side.
Entrance Hallway 4.320m x 3.579m
Approached by a door to front, incorporating a double glazed window to front, radiator, engineered wood floor, coving to the ceiling, inset ceiling lights, under stairs storage cupboard and stairs to the first floor.
Cloakroom/WC 1.941m x 1.232m
Incorporating a wash hand basin set to vanity unit, WC, double glazed obscured window to front, radiator, laminate floor and extractor fan.
Study 2.259m x 1.912m
Incorporating a double glazed window to side, radiator, laminate floor and fitted wardrobes.
Lounge 4.983m x 3.863m
Incorporating a feature fireplace, engineered wood floor, radiator and coving to the ceiling. Open to the conservatory.
Conservatory 3.242m x 3.172m
Incorporating double glazed french doors to side, tiled floor and under floor heating.
Breakfast Kitchen 4.293m x 3.593m
Incorporating a range of fitted wall and base units with complementary work surface over, island unit with breakfast bar, integrated oven, integrated combi microwave and an integrated induction hob with cooker hood over. Integrated fridge, integrated dishwasher, splash backs and 1.5 sink unit with mixer tap. Double glazed window to rear, radiator, inset ceiling lights, LVT flooring, door to the integral garage and french doors opening into the dining room.
Dining Room 3.562m x 3.207m
Incorporating a double glazed window to front, radiator, engineered wood floor and coving to the ceiling.
First Floor Landing
Incorporating a radiator, airing cupboard and loft access.
Bedroom One 4.054m x 3.373m
A double bedroom incorporating a double glazed tilt & turn window to rear, radiator and laminate floor.
En Suite Shower Room 2.563m max x 1.643m
Incorporating a modern three piece suite comprising of a shower cubicle with waterfall shower & shower attachment, wash hand basin set to vanity unit and WC. Double glazed obscured window to side, heated towel rail, tiled floor, tiling to all walls, extractor fan, panelled ceiling and inset ceiling lights.
Bedroom Two 3.280m x 3.182m
A double bedroom incorporating a double glazed window to front, radiator and laminate floor.
Bedroom Three 4.046m x 2.568m min
A double bedroom incorporating a double glazed window to rear, radiator and laminate floor.
Bedroom Four 3.539m x 2.922m
A double bedroom incorporating a double glazed window to side, radiator and laminate floor.
Bathroom 2.698m x 2.179m
Incorporating a four piece suite comprising of a bath with mixer tap & shower attachment, shower cubicle, wash hand basin set to vanity unit and WC. Double glazed obscured window to rear, radiator, vinyl tile flooring, tiled splash areas, extractor fan and inset ceiling lights.
Outside
The property is approached by ample block paved parking for several vehicles leading to the integral double garage. There is also shillied areas, flower & shrub beds, outside tap, EV charger and a Porcelain tiled path to the side with gated access to the rear garden. To the rear of the property there is a landscaped garden with Porcelain tiled pathways & seating areas, professionally laid artificial "Namgrass" lawn, outside tap, raised flower & shrub beds and gated pedestrian access to the rear providing short cut to village amenities.
Integral Double Garage 6.865m x 5.424m
Incorporating an electric double up and over door, double glazed window to rear, door to rear, power, lighting and a utility area with fitted wall and base units with work surface over, plumbing for a washing machine, space for a tumble dryer and sink unit with mixer tap.
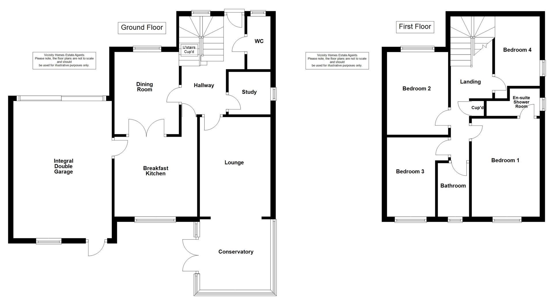
Floor Plan
Please note, the floor plan is not to scale and should be used for illustrative purposes only.
Tenure
The property is Freehold.
Council Tax
The property is in Council Tax Band E.
EPC Band C
https://find-energy-certificate.service.gov.uk/energy-certificate/8835-1722-8509-0120-7222
Viewings
Strictly through arranged appointments by Vicinity Homes. To arrange a viewing, please contact: T: 01228 599011 or E: sales@vicinityhomes.co.uk.
Referral Fees
We routinely refer potential purchasers to Mortgage Advisers - Fisher Financial Associates. It is your decision whether you choose to deal with Fisher Financial Associates. In making that decision, you should know that we will receive commission from the company worth approximately £50 depending on any business written.
Referral Fees - Vicinity Homes work with preferred conveyancers for a house sale or purchase. You are under no obligation to use their services. Should you choose to use them, Vicinity Homes Estate Agents will receive a referral fee of between £120.00 to £150.00 on completion of a sale or purchase.
Misrepresentation Act 1967
These particulars, whilst believed to be accurate, are set out for guidance only and do not constitute any part of an offer or contract - intending purchasers should not rely on them as statements or representations of fact, but must satisfy themselves by inspection or otherwise as to their accuracy. All electrical appliances mentioned in these details have not been tested and therefore cannot be guaranteed to be in working order.
Mailing List
To register your buying information and receive updates on all our available properties, please contact Vicinity Homes on 01228 599011 or via email to sales@vicinityhomes.co.uk.
Free, No Obligation Valuation
We would be pleased to provide you with a free, no obligation valuation for your home. Please contact Vicinity Homes on 01228 599011 or via email to sales@vicinityhomes.co.uk to arrange an appointment.
























































































