Farlam Drive, Carlisle
Property Summary
Full Details
Directions
Proceed East along Warwick Road. Turn right at the traffic lights onto Eastern Way. Turn right onto Durranhill Road and left at the round about. Continue on this road. Turn left onto Geltsdale Avenue and continue on this road. Turn left onto Farlam Drive. Follow the road, the property is situated on the left hand side and can be identified by our "For Sale" sign.
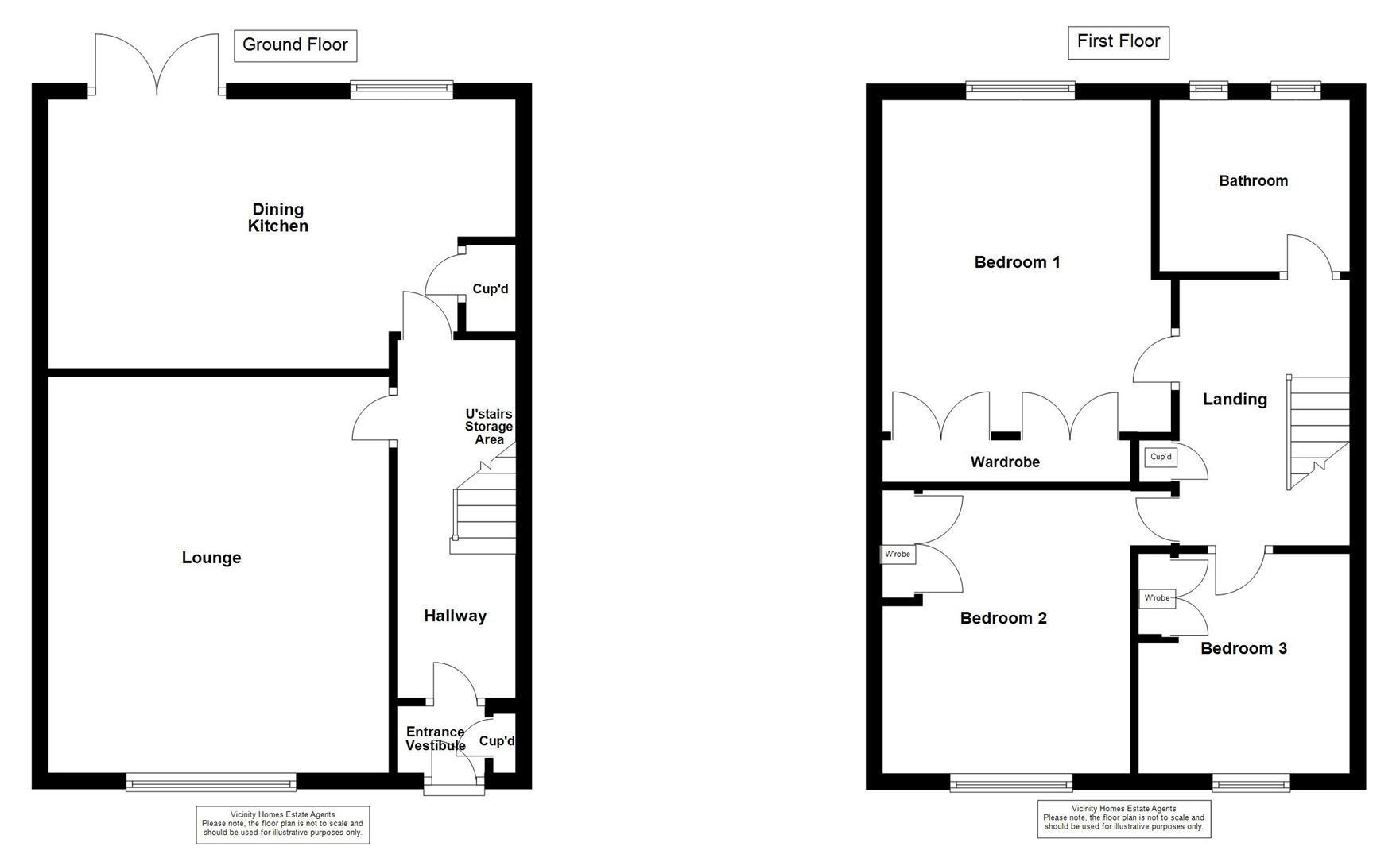
Entrance Vestibule
Approached by a door to front, built in storage cupboard and inset ceiling lights.
Hallway
Incorporating a radiator, under stairs storage area and stairs to the first floor.
Lounge 5.042m x 3.234m
Incorporating a double glazed window to front, radiator and inset ceiling lights.
Dining Kitchen 4.556m x 3.654m
Incorporating a range of fitted wall and base units with complementary work surface over, integrated oven and integrated hob with cooker hood over. Tiled splash areas, 1.5 sink unit with mixer tap, space for a fridge/freezer and plumbing for a washing machine. Double glazed french doors to rear, double glazed window to rear, radiator and inset ceiling lights.
First Floor Landing
Incorporating loft access, built in storage cupboard and inset ceiling lights.
Bedroom One 3.611m to wardrobe front x 2.716m
A double bedroom incorporating a double glazed window to rear, radiator, fitted wardrobe/storage and inset ceiling lights.
Bedroom Two 3.306m x 2.389m
A double bedroom incorporating a double glazed window to front, radiator, fitted wardrobe/storage and inset ceiling lights.
Bedroom Three 2.762m x 2.283m
Incorporating a double glazed window to front, radiator, laminate floor, fitted wardrobe/storage and inset ceiling lights.
Bathroom 2.402m x 1.662m
Incorporating a three piece suite comprising of a bath with waterfall shower over & shower attachment, pedestal wash hand basin and WC. Two double glazed obscured windows to rear, radiator, tiled splash areas, panelled ceiling and inset ceiling lights.
Outside
The property is approached by a front garden with patio seating area and shillied area. To the rear of the property there is a good sized garden with patio seating area, raised lawn area and gated access to the rear.
Floor Plan
Please note, the floor plan is not to scale and should be used for illustrative purposes only.
EPC Band C
https://find-energy-certificate.service.gov.uk/energy-certificate/0234-3957-6202-3265-2200
Tenure
The property is Freehold.
Council Tax
The property is in Council Tax Band A.
Viewings
Strictly through arranged appointments by Vicinity Homes. To arrange a viewing, please contact: T: 01228 599011 or E: sales@vicinityhomes.co.uk.
Referral Fees
We routinely refer potential purchasers to Mortgage Advisers - Fisher Financial Associates. It is your decision whether you choose to deal with Fisher Financial Associates. In making that decision, you should know that we will receive commission from the company worth approximately £50 depending on any business written.
Referral Fees - Vicinity Homes work with preferred conveyancers for a house sale or purchase. You are under no obligation to use their services. Should you choose to use them, Vicinity Homes Estate Agents will receive a referral fee of between £120.00 to £150.00 on completion of a sale or purchase.
Misrepresentation Act 1967
These particulars, whilst believed to be accurate, are set out for guidance only and do not constitute any part of an offer or contract - intending purchasers should not rely on them as statements or representations of fact, but must satisfy themselves by inspection or otherwise as to their accuracy. All electrical appliances mentioned in these details have not been tested and therefore cannot be guaranteed to be in working order.
Mailing List
To register your buying information and receive updates on all our available properties, please contact Vicinity Homes on 01228 599011 or via email to sales@vicinityhomes.co.uk.
Free, No Obligation Valuation
We would be pleased to provide you with a free, no obligation valuation for your home. Please contact Vicinity Homes on 01228 599011 or via email to sales@vicinityhomes.co.uk to arrange an appointment.
















































