Cumrew Close, Carlisle
Property Summary
Full Details
Directions
Proceed East along Warwick Road. Turn right at the traffic lights onto Eastern Way. Turn right onto Durranhill Road and left at the round about. Continue on this road. Turn left onto Geltsdale Avenue and left again onto Cumrew Close. Follow the road to the right, the property is situated on the right hand side and can be identified by our "For Sale" sign.
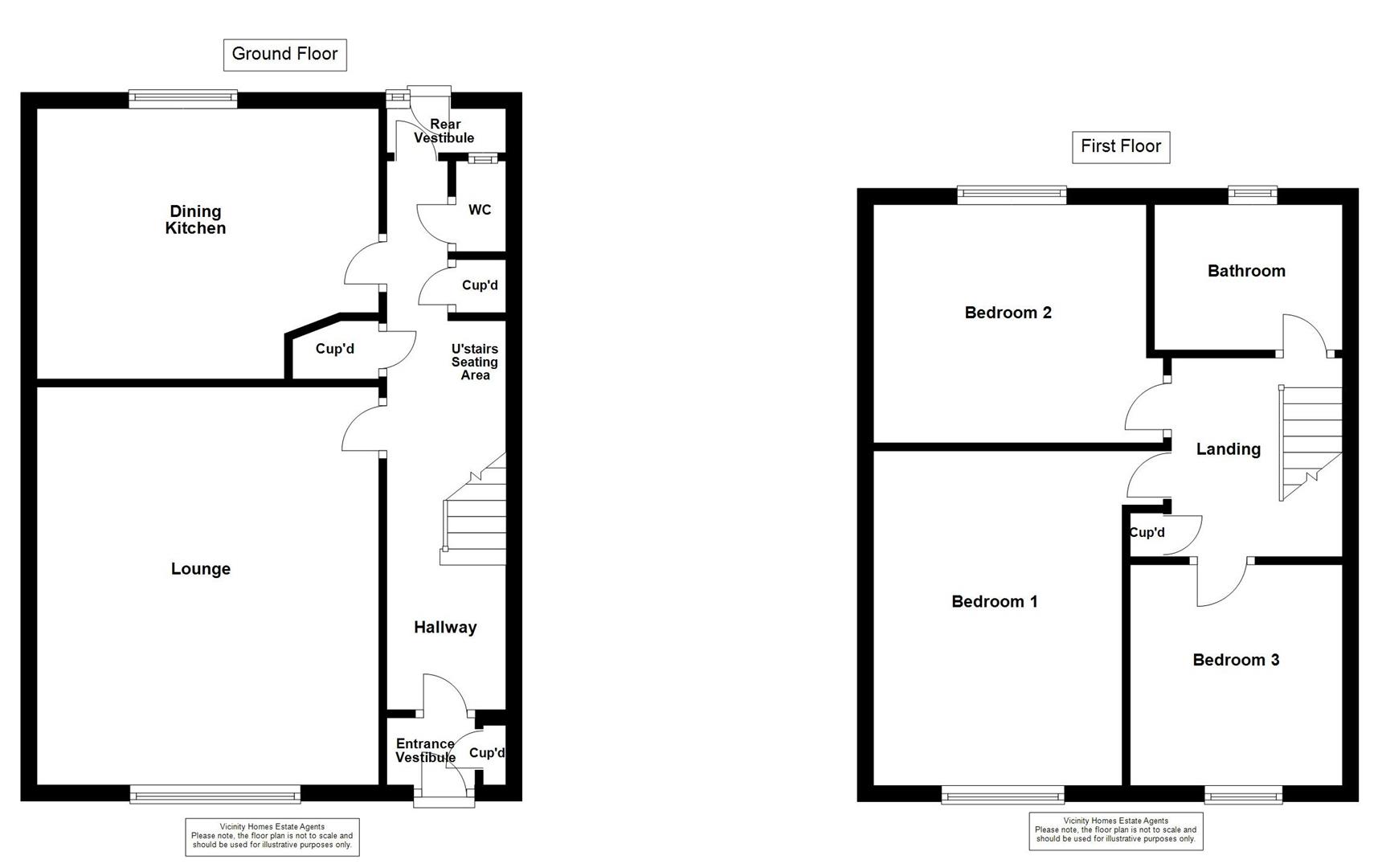
Entrance Vestibule
Approached by a door to front, incorporating tiled floor and built in storage.
Hallway
Incorporating a radiator, vinyl flooring, radiator, under stairs seating area, stairs to the first floor and two good sized storage cupboards.
Lounge 5.047m x 3.715m
Incorporating a double glazed window to front, radiator, coving to the ceiling and a feature fireplace.
Cloakroom/WC 1.793m x 0.793m
Incorporating a wash hand basin set to vanity unit, WC, double glazed window to rear and tiled splash areas.
Dining Kitchen 3.685m x 3.360m
Incorporating a range of fitted wall and base units with complementary work surface over, integrated oven and integrated hob with cooker hood over. Tiled splash areas, 1.5 sink unit with mixer tap, plumbing for a washing machine, plumbing for a dishwasher and space for a fridge/freezer. Double glazed window to rear, radiator, tiled floor and coving to the ceiling.
Rear Vestibule
Incorporating tiled floor, space for a tumble dryer and door to rear.
First Floor Landing
Incorporating a built in storage cupboard and loft access.
Bedroom One 4.431m x 2.886m
A double bedroom incorporating a double glazed window to front, radiator and coving to the ceiling.
Bedroom Two 3.087m x 3.540m
A double bedroom incorporating a double glazed window rear, radiator and coving to the ceiling.
Bedroom Three 2.716m x 2.306m
Incorporating a double glazed window to front, radiator and coving to the ceiling.
Bathroom 2.024m x 1.677m
Incorporating a three piece suite comprising of a bath with mixer tap & shower over, pedestal wash hand basin and WC. Double glazed obscured window to rear, heated towel rail, tiled floor, tiling to all walls and coving to the ceiling.
Outside
The property is approached by a shillied front garden. To the rear of the property there is a good sized garden with patio seating area, lawn area, outside tap and gated access to the rear.
Floor Plan
Please note, the floor plan it not to scale and should be used for illustrative purposes only.
EPC Band C
https://find-energy-certificate.service.gov.uk/energy-certificate/0849-2859-7457-9076-9405
Tenure
The property is Freehold.
Council Tax
The property is in Council Tax Band A.
Viewings
Strictly through arranged appointments by Vicinity Homes. To arrange a viewing, please contact: T: 01228 599011 or E: sales@vicinityhomes.co.uk.
Referral Fees
We routinely refer potential purchasers to Mortgage Advisers - Fisher Financial Associates. It is your decision whether you choose to deal with Fisher Financial Associates. In making that decision, you should know that we will receive commission from the company worth approximately £50 depending on any business written.
Referral Fees - Vicinity Homes work with preferred conveyancers for a house sale or purchase. You are under no obligation to use their services. Should you choose to use them, Vicinity Homes Estate Agents will receive a referral fee of between £120.00 to £150.00 on completion of a sale or purchase.
Misrepresentation Act 1967
These particulars, whilst believed to be accurate, are set out for guidance only and do not constitute any part of an offer or contract - intending purchasers should not rely on them as statements or representations of fact, but must satisfy themselves by inspection or otherwise as to their accuracy. All electrical appliances mentioned in these details have not been tested and therefore cannot be guaranteed to be in working order.
Mailing List
To register your buying information and receive updates on all our available properties, please contact Vicinity Homes on 01228 599011 or via email to sales@vicinityhomes.co.uk.
Free, No Obligation Valuation
We would be pleased to provide you with a free, no obligation valuation for your home. Please contact Vicinity Homes on 01228 599011 or via email to sales@vicinityhomes.co.uk to arrange an appointment.






















































