Cammock Crescent, Carlisle
Property Summary
Full Details
Directions
Proceed South along London Road. Turn right onto Petteril Bank Road and follow this road onto St Ninians Road. At the crossroads and traffic lights turn left onto Brisco road and left again onto Cammock Road. Turn left onto Cammock Avenue and right onto Cammock Crescent. The property is situated on the right hand side and can be identified by our "For Sale" sign.
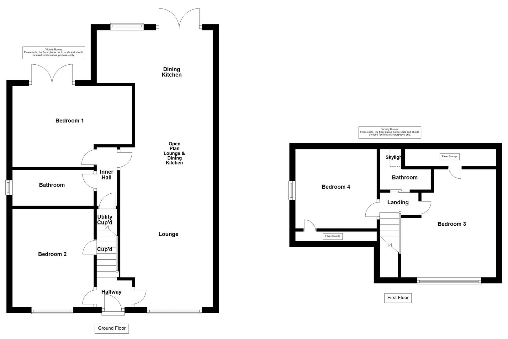
Entrance Hallway
Approached by a door to front, incorporating a radiator and stairs to the first floor.
Open Plan Lounge & Dining Kitchen
Lounge 5.752m x 3.578m
Incorporating a double glazed window to front, radiator, laminate floor and a feature fireplace.
Dining Kitchen 5.832m x 4.217m min x 3.079m max
Incorporating a range of modern fitted wall and base units with complementary work surface over, integrated oven and integrated hob with cooker hood over. Breakfast bar, integrated fridge, integrated freezer, integrated dishwasher and 1.5 sink unit with mixer tap. Double glazed window to rear, double glazed french doors to rear, radiator, laminate floor and inset ceiling lights.
Inner Hallway
Incorporating a built in storage cupboard with plumbing for a washing machine.
Bedroom One 3.802m x 3.309m max x 2.339m min
A double bedroom incorporating double glazed french doors to rear and a radiator.
Bathroom 2.372m x 1.470m
Incorporating a modern three piece suite comprising of a bath with waterfall shower over & attachment, pedestal wash hand basin and WC. Double glazed obscured window to side, heated towel rail, splash backs, inset ceiling lights, extractor fan and laminate floor.
Bedroom Two 3.614m x 2.421m
A double bedroom incorporating a double glazed window to front, radiator and built in storage cupboard.
First Floor Landing
Incorporating inset ceiling lights.
Bedroom Three 3.917m x 3.511m
A double bedroom incorporating a double glazed window to front, radiator and storage into the eaves.
Bedroom Four 3.646m max x 2.425m
A small double bedroom incorporating a double glazed window to side, radiator and storage into the eaves.
Bathroom 2.242m max x 1.939m max x 0.888m min
Incorporating a modern three piece suite comprising of a bath with mixer tap & shower attachment, wash hand basin and WC. Double glazed skylight to rear, heated towel rail, vinyl flooring, splash backs, inset ceiling lights and extractor fan.
Outside
The property is approached by on site parking for two/three vehicles leading to the single garage. There is also a lawn area and gated access to the rear. There is a generous sized rear enclosed garden which has a lawn area, patio seating area, shillied area and timber decked area.
Garage 5.759m x 2.732m
Incorporating an up and over door and double glazed obscured window to side.
Floor Plan
Please note, the floor plan is not to scale and should be used for illustrative purposes only.
EPC Band D
https://find-energy-certificate.service.gov.uk/energy-certificate/1819-5089-7102-0207-1206
Tenure
The property is Freehold
Council Tax
The property is in Council Tax Band C.
Viewings
Strictly through arranged appointments by Vicinity Homes. To arrange a viewing, please contact: T: 01228 599011 or E: sales@vicinityhomes.co.uk.
Referral Fees
We routinely refer potential purchasers to Mortgage Advisers - Fisher Financial Associates. It is your decision whether you choose to deal with Fisher Financial Associates. In making that decision, you should know that we will receive commission from the company worth approximately £50 depending on any business written.
Referral Fees - Vicinity Homes work with preferred conveyancers for a house sale or purchase. You are under no obligation to use their services. Should you choose to use them, Vicinity Homes Estate Agents will receive a referral fee of between £120.00 to £150.00 on completion of a sale or purchase.
Misrepresentation Act 1967
These particulars, whilst believed to be accurate, are set out for guidance only and do not constitute any part of an offer or contract - intending purchasers should not rely on them as statements or representations of fact, but must satisfy themselves by inspection or otherwise as to their accuracy. All electrical appliances mentioned in these details have not been tested and therefore cannot be guaranteed to be in working order.
Mailing List
To register your buying information and receive updates on all our available properties, please contact Vicinity Homes on 01228 599011 or via email to sales@vicinityhomes.co.uk.
Free, No Obligation Valuation
We would be pleased to provide you with a free, no obligation valuation for your home. Please contact Vicinity Homes on 01228 599011 or via email to sales@vicinityhomes.co.uk to arrange an appointment.






































































