Brookside, Carlisle
Property Summary
Full Details
Directions
Proceed West along Newtown Road and turn left onto Shady Grove Road. Turn left onto Brookside and follow the road. The property is situated on the right hand side and can be identified by our "For Sale" sign.
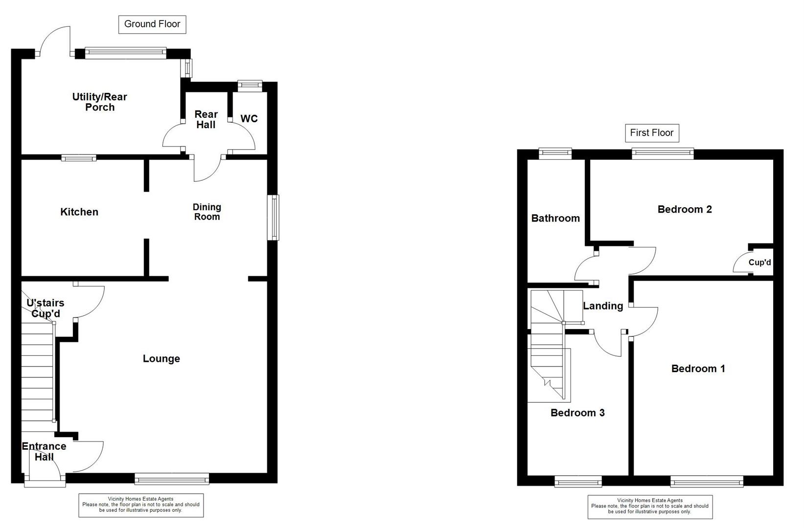
Entrance Hallway
Approached by a door to front, incorporating stairs to the first floor.
Lounge 3.965m x 3.620m
Incorporating a double glazed window to front, radiator, inset ceiling lights and under stairs storage cupboard.
Dining Room 2.759m x 2.721m
Incorporating a double glazed window to side, radiator and inset ceiling lights.
Kitchen 2.731m x 2.614m
Incorporating a range of modern fitted wall and base units with complementary work surface over, integrated oven and integrated hob with cooker hood over. Plumbing for a dishwasher, 1.5 sink unit with mixer tap, space for a fridge/freezer, double glazed window to rear and inset ceiling lights.
Rear Hallway
Incorporating inset ceiling lights.
Cloakroom/WC 1.390m x 0.798m
Incorporating tiled floor, tiled splash areas, double glazed obscured window to rear and a WC with an inset wash hand basin.
Utility Room/Rear Porch 3.421m x 2.707m
Incorporating a range of modern fitted base units with work surface over, plumbing for a washing machine and space for a tumble drier. Sink unit with mixer tap, radiator, double glazed window to side, double glazed window to rear and door to rear.
First Floor Landing
Incorporating inset ceiling lights and loft access.
Bedroom One 3.622m x 2.638m
A double bedroom incorporating a double glazed window to front and a radiator.
Bedroom Two 4.048m x 2.736m
A double bedroom incorporating a double glazed window to rear, radiator and built in storage cupboard.
Bedroom Three 2.738m max x 2.612m max
Incorporating a double glazed window to front and a radiator.
Bathroom 2.698m x 1.325m
Incorporating a modern three piece suite comprising of a bath with waterfall shower over & shower attachment, pedestal wash hand basin and WC. Double glazed obscured window to rear, heated towel rail, tiled floor, tiled splash areas, inset ceiling lights and extractor fan.
Outside
The property is approached by double gated access to a block paved driveway, shillied area and flower and shrub beds leading to the side. At the rear of the property there is a good sized garden with a raised patio seating area, garden and outside tap.
Floor Plan
Please note, the floor plan is not to scale and should be used for illustrative purposes only.
EPC Band D
https://find-energy-certificate.service.gov.uk/energy-certificate/9301-3047-8207-1845-3204
Council Tax
The property is in Council Tax Band A.
Tenure
The property is Freehold.
Viewings
Strictly through arranged appointments by Vicinity Homes. To arrange a viewing, please contact: T: 01228 599011 or E: sales@vicinityhomes.co.uk.
Referral Fees
We routinely refer potential purchasers to Mortgage Advisers - Fisher Financial Associates. It is your decision whether you choose to deal with Fisher Financial Associates. In making that decision, you should know that we will receive commission from the company worth approximately £50 depending on any business written.
Referral Fees - Vicinity Homes work with preferred conveyancers for a house sale or purchase. You are under no obligation to use their services. Should you choose to use them, Vicinity Homes Estate Agents will receive a referral fee of between £120.00 to £150.00 on completion of a sale or purchase.
Misrepresentation Act 1967
These particulars, whilst believed to be accurate, are set out for guidance only and do not constitute any part of an offer or contract - intending purchasers should not rely on them as statements or representations of fact, but must satisfy themselves by inspection or otherwise as to their accuracy. All electrical appliances mentioned in these details have not been tested and therefore cannot be guaranteed to be in working order.
Mailing List
To register your buying information and receive updates on all our available properties, please contact Vicinity Homes on 01228 599011 or via email to sales@vicinityhomes.co.uk.
Free, No Obligation Valuation
We would be pleased to provide you with a free, no obligation valuation for your home. Please contact Vicinity Homes on 01228 599011 or via email to sales@vicinityhomes.co.uk to arrange an appointment.
































































