Jubilee Road, Carlisle
Property Summary
Full Details
Directions
Proceed South along Currock Road. Turn right onto Jubilee Road. The property is situated on the right hand side and can be identified by our "For Sale" sign.
Entrance Hallway
Approached by a door to front, incorporating a radiator, laminate floor and stairs to the first floor.
Lounge 4.037m x 3.626m
Incorporating a double glazed window to front, radiator, under stairs storage cupboard and coving to the ceiling.
Dining Kitchen 5.436m x 2.709m
Incorporating a range of fitted wall and base units with complementary work surface over, integrated oven and integrated hob with cooker hood over. Tiled splash areas, sink unit with mixer tap and plumbing for a washing machine. Double glazed window to side, double glazed window to rear, radiator, tiled floor and inset ceiling lights.
Rear Hallway
Incorporating a door to side and tiled floor.
Cloakroom/WC 1.526m x 0.830m
Incorporating a WC, radiator, tiled floor and obscured window to rear.
First Floor Landing
Incorporating loft access.
Bedroom One 3.993m max x 2.709m
A double bedroom incorporating a double glazed window to rear, radiator and laminate floor.
Bedroom Two 3.632m x 2.579m
A double bedroom incorporating a double glazed window to front, radiator and laminate floor.
Bedroom Three 2.789m max x 2.640m max
Incorporating a double glazed window to front, radiator and fitted wardrobe/storage.
Bathroom 2.703m x 1.360m
Incorporating a three piece suite comprising of a bath with shower attachment, pedestal wash hand basin and WC. Double glazed obscured window to rear, radiator, tiled splash areas, inset ceiling lights and extractor fan.
Outside
The property is approached by on site parking for one vehicle, a lawn area with flower & shrub beds and access into the covered storage area which leads to the rear garden. To the rear of the property there is a good sized enclosed garden with lawn area, outside tap and gated access into the outside store.
Outside Store
A covered store with gated access to the front garden and the rear garden.
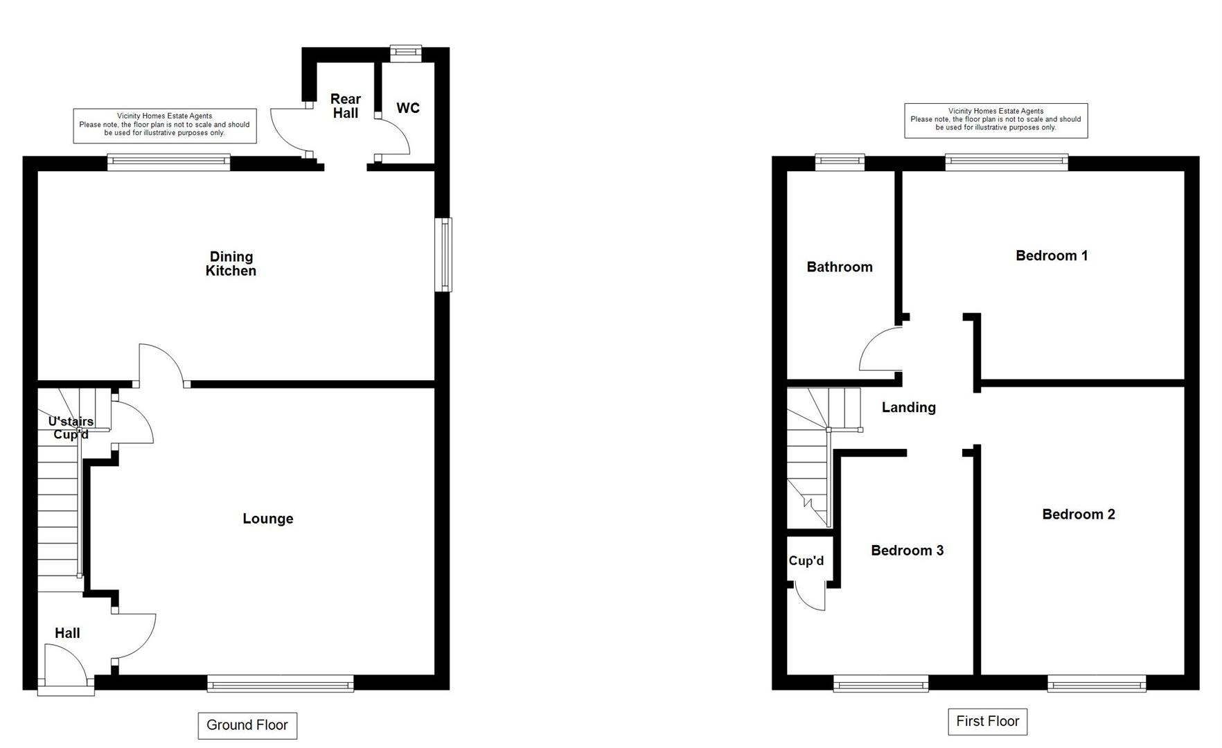
Floor Plan
Please note, the floor plan is not to scale and should be used for illustrative purposes only.
EPC Band D
https://find-energy-certificate.service.gov.uk/energy-certificate/0900-0046-0822-2598-3263
Council Tax
The property is in Council Tax Band A.
Tenure
The property is Freehold.
Viewings
Strictly through arranged appointments by Vicinity Homes. To arrange a viewing, please contact: T: 01228 599011 or E: sales@vicinityhomes.co.uk.
Referral Fees
We routinely refer potential purchasers to Mortgage Advisers - Fisher Financial Associates. It is your decision whether you choose to deal with Fisher Financial Associates. In making that decision, you should know that we will receive commission from the company worth approximately £50 depending on any business written.
Referral Fees - Vicinity Homes work with preferred conveyancers for a house sale or purchase. You are under no obligation to use their services. Should you choose to use them, Vicinity Homes Estate Agents will receive a referral fee of between £120.00 to £150.00 on completion of a sale or purchase.
Misrepresentation Act 1967
These particulars, whilst believed to be accurate, are set out for guidance only and do not constitute any part of an offer or contract - intending purchasers should not rely on them as statements or representations of fact, but must satisfy themselves by inspection or otherwise as to their accuracy. All electrical appliances mentioned in these details have not been tested and therefore cannot be guaranteed to be in working order.
Mailing List
To register your buying information and receive updates on all our available properties, please contact Vicinity Homes on 01228 599011 or via email to sales@vicinityhomes.co.uk.
Free, No Obligation Valuation
We would be pleased to provide you with a free, no obligation valuation for your home. Please contact Vicinity Homes on 01228 599011 or via email to sales@vicinityhomes.co.uk to arrange an appointment.














































